Debrecen, Júliatelep-i új építésű 120 nm-es családi házak leköthetőek!
145 000 000 FtDebrecen, Júliatelep-i új építésű 120 nm-es családi házak leköthetőek!
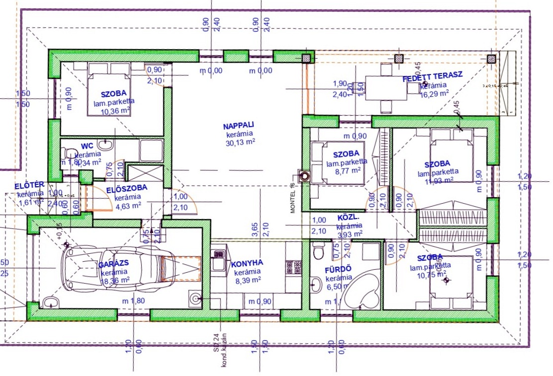
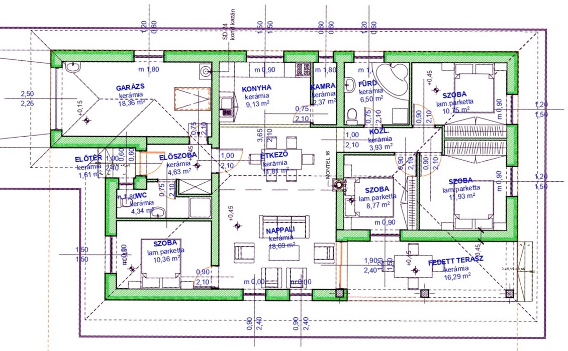
A telek és a ház főbb műszaki paraméterei, jellemzői:
- 2025-ös tégla építésű (Porotherm 30)
- nappali plusz 3 szoba
- szobák laminált parkettával burkoltak, a többi helyiség járólappal burkolt
- 15 cm-es külső szigeteléssel, padló 12 cm, födém 25 cm cellulóz
- fűtése: hőszivattyú, padlófűtés minden helyiségben
- nyílászárók: színes műanyag nyílászárók, 3 rétegű, hőszigetelő üvegezéssel.
- 2 db klímával
- riasztó előkészítés
- rejtett redőnytok (elektromos előkészítés)
- fedett terasz: 16 nm
- garázs szekcionált garázskapuval 18 nm
- telek: 602-612 nm-ek
- tető héjazata betoncserép
- az épület körül 1 méter szélességben térköves járda és kocsibeálló
- parkolási lehetőség az udvaron belül
- térkövezett utca
Várható átadás 2025
A kornak megfelelő korszerű, magas műszaki tartalommal. Az igényesen kialakított családi házakat ajánlom mindazoknak akik kertes házra vágynak és csendes, kertvárosi környezetben kívánnak élni, ami maximálisan biztosítja a nyugodt mindennapokat.
CSOK Plusz igényelhető, de egyedi kamatozású hitelekben is tudunk segítséget nyújtani ügyfeleinknek minden banknál!
Részletesebb információkért hívjon bizalommal!




